MITSUBISHI ELECTRONICS
MP3300
|
Processor |
80386SX |
|
Processor Speed |
16MHz |
|
Chip Set |
None |
|
Max. Onboard DRAM |
1MB (location unknown) |
|
Cache |
None |
|
BIOS |
Mitsubishi/Phoenix |
|
Dimensions |
330mm x 218mm |
|
I/O Options |
32-bit external memory slot, floppy drive interface, parallel port, serial port (2) |
|
NPU Options |
80387SX |
|
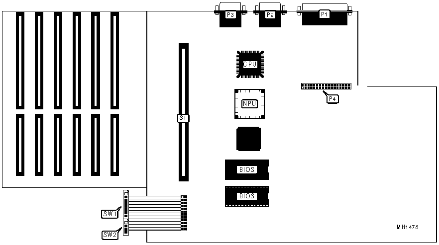
CONNECTIONS | |||
|
Purpose |
Location |
Purpose |
Location |
|
Parallel port |
P1 |
Floppy drive interface |
P4 |
|
Serial port (COM1) |
P2 |
32-bit external memory slot |
S1 |
|
Serial port (COM2) |
P3 | ||
|
USER CONFIGURABLE SETTINGS | |||
|
Function |
Switch |
Position | |
| » |
Floppy interface enabled |
SW1/switch 1 |
off |
|
Floppy interface disabled |
SW1/switch 1 |
on | |
| » |
Factory configured - do not alter |
SW1/switch 2 |
off |
| » |
Factory configured - do not alter |
SW1/switch 4 |
off |
| » |
I/O bus speed select ATCLK/8 |
SW1/switch 6 |
on |
|
I/O bus speed select ATCLK/6 |
SW1/switch 6 |
off | |
| » |
Keyboard select enhanced enabled |
SW1/switch 7 |
on |
|
Keyboard select enhanced disabled |
SW1/switch 7 |
off | |
| » |
Monitor type select monochrome |
SW1/switch 8 |
off |
|
Monitor type select color |
SW1/switch 8 |
on | |
|
MEMORY MODE CONFIGURATION | ||||
|
Mode |
Size |
SW1/switch 3 |
SW1/switch 5 | |
|
A |
512KB (base) |
Off |
On | |
| » |
C |
640KB (base) |
Off |
Off |
|
D |
512KB (external) |
On |
Off | |
|
SERIAL PORT CONFIGURATION | |||
|
COM |
SW2/switch 1 |
SW2/Switch 2 | |
| » |
COM1 |
Off |
On |
|
COM2 |
Off |
Off | |
|
Disabled |
On |
On | |
|
PARALLEL PORT CONFIGURATION | |||
|
LPT |
SW2/switch 3 |
SW2/Switch 4 | |
| » |
LPT1 |
Off |
Off |
|
LPT2 |
Off |
On | |
|
LPT3 |
On |
Off | |
|
Disabled |
On |
On | |
|
DRAM CONFIGURATION | ||||||||
|
Base Address |
SW1 |
SW2 |
SW3 |
SW4 |
SW5 |
SW6 |
SW6 |
SW7 |
|
1M |
on |
on |
on |
on |
off |
on |
off |
off |
|
1.5M |
on |
on |
on |
on |
off |
off |
off |
off |
|
2M |
on |
on |
on |
off |
on |
on |
off |
off |
|
2.5M |
on |
on |
on |
off |
on |
off |
off |
off |
|
3M |
on |
on |
on |
off |
off |
on |
off |
off |
|
3.5M |
on |
on |
on |
off |
off |
off |
off |
off |
|
4M |
on |
on |
off |
on |
on |
on |
off |
off |
|
4.5M |
on |
on |
off |
on |
on |
off |
off |
off |
|
5M |
on |
on |
off |
on |
off |
on |
off |
off |
|
5.5M |
on |
on |
off |
on |
off |
off |
off |
off |
|
6M |
on |
on |
off |
off |
on |
on |
off |
off |
|
6.5M |
on |
on |
off |
off |
on |
off |
off |
off |
|
Note: Memory expansion board is 4MB. | ||||||||