PC CHIPS MANUFACTURING, LTD.
M571
|
Device Type |
Mainboard |
|
Processor |
CX 6X86L/CX 6X86MX/IBM 6X86L/IBM 6X86MX/AM K6/IDT C6/Pentium/ Pentium MMX |
|
Processor Speed |
75/90/100/120/133/150/166/180/200/233/266MHz |
|
Chip Set |
Intel TX Pro II BGA |
|
Video Chip Set |
None |
|
Maximum Onboard Memory |
384MB (EDO & SDRAM supported) |
|
Maximum Video Memory |
None |
|
Cache |
512KB |
|
BIOS |
AMI |
|
Dimensions |
330mm x 218mm |
|
I/O Options |
32-bit PCI slots (4), floppy drive interface, green PC connector, IDE interfaces (2), parallel port, PS/2 mouse interface, serial ports (2), VGA interface, IR connector, USB connectors (2), ATX power connector |
|
NPU Options |
None |
|
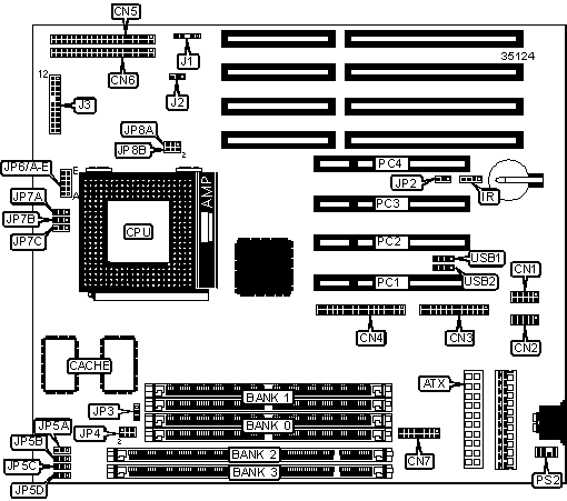
CONNECTIONS | |||
|
Purpose |
Location |
Purpose |
Location |
|
ATX power connector |
ATX |
Turbo LED |
J3/pins 7 & 18 |
|
Serial port 1 |
CN1 |
IDE interface LED |
J3/pins 8 & 19 |
|
Serial port 2 |
CN2 |
Reset switch |
J3/pins 9 & 20 |
|
Parallel port |
CN3 |
Standby LED |
J3/pins 11 & 22 |
|
Floppy drive interface |
CN4 |
Speaker |
J3/pins 12 - 15 |
|
IDE interface 1 |
CN5 |
PS/2 mouse interface |
PS2 |
|
IDE interface 2 |
CN6 |
USB connector 1 |
USB1 |
|
VGA interface |
CN7 |
USB connector 2 |
USB2 |
|
Soft off power supply |
J1 |
IR connector |
IR |
|
Chassis fan power |
J2 |
32-bit PCI slots |
PC1 – PC4 |
|
Power LED & keylock |
J3/pins 1 - 5 | ||
|
USER CONFIGURABLE SETTINGS | |||
|
Function |
Label |
Position | |
|
» |
CMOS memory normal operation |
JP2 |
Pins 1 & 2 closed |
|
CMOS memory clear |
JP2 |
Pins 2 & 3 closed | |
|
On board video enabled |
JP3 |
Pins 2 & 3 closed | |
|
On board video disabled |
JP3 |
Pins 1 & 2 closed | |
|
PCI clock speed select CPU CLK/2 |
JP5D |
Pins 1 & 2 closed | |
|
PCI clock speed select CPU CLK = 33MHz |
JP5D |
Pins 2 & 3 closed | |
|
SIMM CONFIGURATION | ||
|
Size |
Bank 0 |
Bank 1 |
|
8MB |
(2) 1M x 36 |
None |
|
16MB |
(2) 2M x 36 |
None |
|
16MB |
(2) 1M x 36 |
(2) 1M x 36 |
|
24MB |
(2) 2M x 36 |
(2) 1M x 36 |
|
32MB |
(2) 4M x 36 |
None |
|
32MB |
(2) 2M x 36 |
(2) 2M x 36 |
|
40MB |
(2) 4M x 36 |
(2) 1M x 36 |
|
48MB |
(2) 4M x 36 |
(2) 2M x 36 |
|
64MB |
(2) 8M x 36 |
None |
|
SIMM CONFIGURATION (CON’T) | ||
|
Size |
Bank 0 |
Bank 1 |
|
64MB |
(2) 4M x 36 |
(2) 4M x 36 |
|
72MB |
(2) 8M x 36 |
(2) 1M x 36 |
|
80MB |
(2) 8M x 36 |
(2) 2M x 36 |
|
96MB |
(2) 8M x 36 |
(2) 4M x 36 |
|
128MB |
(2) 8M x 36 |
(2) 8M x 36 |
|
128MB |
(2) 16M x 36 |
None |
|
136MB |
(2) 16M x 36 |
(2) 1M x 36 |
|
144MB |
(2) 16M x 36 |
(2) 2M x 36 |
|
160MB |
(2) 16M x 36 |
(2) 4M x 36 |
|
192MB |
(2) 16M x 36 |
(2) 8M x 36 |
|
256MB |
(2) 16M x 36 |
(2) 16M x 36 |
|
Note: Board accepts EDO memory. It Is not recommended to install DIMMs & SIMMs at the same time. | ||
|
DIMM CONFIGURATION | ||
|
Size |
Bank 0 |
Bank 1 |
|
8MB |
(1) 1M x 64 |
None |
|
16MB |
(1) 2M x 64 |
None |
|
16MB |
(1) 1M x 64 |
(1) 1M x 64 |
|
24MB |
(1) 2M x 64 |
(1) 1M x 64 |
|
32MB |
(1) 4M x 64 |
None |
|
32MB |
(1) 2M x 64 |
(1) 2M x 64 |
|
40MB |
(1) 4M x 64 |
(1) 1M x 64 |
|
48MB |
(1) 4M x 64 |
(1) 2M x 64 |
|
64MB |
(1) 8M x 64 |
None |
|
64MB |
(1) 4M x 64 |
(1) 4M x 64 |
|
72MB |
(1) 8M x 64 |
(1) 1M x 64 |
|
80MB |
(1) 8M x 64 |
(1) 2M x 64 |
|
96MB |
(1) 8M x 64 |
(1) 4M x 64 |
|
128MB |
(1) 8M x 64 |
(1) 8M x 64 |
|
Note: Board accepts SDRAM memory. For maximum memory of 384MB, fully populate all 4 banks. | ||
|
DIMM/SIMM VOLTAGE CONFIGURATION | |
|
Voltage |
JP4 |
|
3.3v |
Pins 2 & 3, 5 & 6 closed |
|
5v |
Pins 1 & 2, 4 & 5 closed |
|
CACHE CONFIGURATION | |
|
Size |
Bank 0 |
|
512KB |
(1) 64K x 64 |
|
CPU SPEED SELECTION (CX 6X86L) | |||||||
|
CPU speed |
Clock speed |
Multiplier |
JP5A |
JP5B |
JP5C |
JP7A |
JP7B |
|
120MHz |
50MHz |
2x |
2 & 3 |
2 & 3 |
2 & 3 |
2 & 3 |
1 & 2 |
|
133MHz |
55MHz |
2x |
1 & 2 |
2 & 3 |
2 & 3 |
2 & 3 |
1 & 2 |
|
150MHz |
60MHz |
2x |
2 & 3 |
2 & 3 |
1 & 2 |
2 & 3 |
1 & 2 |
|
166MHz |
66MHz |
2x |
2 & 3 |
1 & 2 |
2 & 3 |
2 & 3 |
1 & 2 |
|
200MHz |
75MHz |
2x |
1 & 2 |
2 & 3 |
1 & 2 |
2 & 3 |
1 & 2 |
|
Note: Pins designated should be in the closed position. | |||||||
|
CPU SPEED SELECTION (IBM 6X86L) | |||||||
|
CPU speed |
Clock speed |
Multiplier |
JP5A |
JP5B |
JP5C |
JP7A |
JP7B |
|
120MHz |
50MHz |
2x |
2 & 3 |
2 & 3 |
2 & 3 |
2 & 3 |
1 & 2 |
|
133MHz |
55MHz |
2x |
1 & 2 |
2 & 3 |
2 & 3 |
2 & 3 |
1 & 2 |
|
150MHz |
60MHz |
2x |
2 & 3 |
2 & 3 |
1 & 2 |
2 & 3 |
1 & 2 |
|
166MHz |
66MHz |
2x |
2 & 3 |
1 & 2 |
2 & 3 |
2 & 3 |
1 & 2 |
|
200MHz |
75MHz |
2x |
1 & 2 |
2 & 3 |
1 & 2 |
2 & 3 |
1 & 2 |
|
Note: Pins designated should be in the closed position. | |||||||
|
CPU SPEED SELECTION (CX 6X86MX) | |||||||
|
CPU speed |
Clock speed |
Multiplier |
JP5A |
JP5B |
JP5C |
JP7A |
JP7B |
|
166MHz |
66MHz |
2.5x |
2 & 3 |
1 & 2 |
2 & 3 |
2 & 3 |
2 & 3 |
|
200MHz |
66MHz |
2.5x |
2 & 3 |
1 & 2 |
2 & 3 |
2 & 3 |
2 & 3 |
|
233MHz |
75MHz |
2.5x |
1 & 2 |
2 & 3 |
1 & 2 |
2 & 3 |
2 & 3 |
|
233MHz |
66MHz |
3x |
2 & 3 |
1 & 2 |
2 & 3 |
1 & 2 |
2 & 3 |
|
Note: Pins designated should be in the closed position. | |||||||
|
CPU SPEED SELECTION (IBM 6X86MX) | |||||||
|
CPU speed |
Clock speed |
Multiplier |
JP5A |
JP5B |
JP5C |
JP7A |
JP7B |
|
166MHz |
66MHz |
2.5x |
2 & 3 |
1 & 2 |
2 & 3 |
2 & 3 |
2 & 3 |
|
200MHz |
66MHz |
2.5x |
2 & 3 |
1 & 2 |
2 & 3 |
2 & 3 |
2 & 3 |
|
233MHz |
75MHz |
2.5x |
1 & 2 |
2 & 3 |
1 & 2 |
2 & 3 |
2 & 3 |
|
233MHz |
66MHz |
3x |
2 & 3 |
1 & 2 |
2 & 3 |
1 & 2 |
2 & 3 |
|
Note: Pins designated should be in the closed position. | |||||||
|
CPU SPEED SELECTION (AM K6) | |||||||
|
CPU speed |
Clock speed |
Multiplier |
JP5A |
JP5B |
JP5C |
JP7A |
JP7B |
|
166MHz |
66MHz |
2.5x |
2 & 3 |
1 & 2 |
2 & 3 |
2 & 3 |
2 & 3 |
|
200MHz |
66MHz |
3x |
2 & 3 |
1 & 2 |
2 & 3 |
1 & 2 |
2 & 3 |
|
233MHz |
66MHz |
3.5x |
2 & 3 |
1 & 2 |
2 & 3 |
1 & 2 |
1 & 2 |
|
Note: Pins designated should be in the closed position. | |||||||
|
CPU SPEED SELECTION (IDT C6) | |||||||
|
CPU speed |
Clock speed |
Multiplier |
JP5A |
JP5B |
JP5C |
JP7A |
JP7B |
|
150MHz |
50MHz |
3x |
2 & 3 |
2 & 3 |
2 & 3 |
1 & 2 |
2 & 3 |
|
180MHz |
60MHz |
3x |
2 & 3 |
2 & 3 |
1 & 2 |
1 & 2 |
2 & 3 |
|
Note: Pins designated should be in the closed position. | |||||||
|
CPU SPEED SELECTION (INTEL) | |||||||
|
CPU speed |
Clock speed |
Multiplier |
JP5A |
JP5B |
JP5C |
JP7A |
JP7B |
|
75MHz |
50MHz |
1.5x |
2 & 3 |
2 & 3 |
2 & 3 |
1 & 2 |
1 & 2 |
|
90MHz |
60MHz |
1.5x |
2 & 3 |
2 & 3 |
1 & 2 |
1 & 2 |
1 & 2 |
|
100MHz |
66MHz |
1.5x |
2 & 3 |
1 & 2 |
2 & 3 |
1 & 2 |
1 & 2 |
|
120MHz |
60MHz |
2x |
2 & 3 |
2 & 3 |
1 & 2 |
2 & 3 |
1 & 2 |
|
133MHz |
66MHz |
2x |
2 & 3 |
1 & 2 |
2 & 3 |
2 & 3 |
1 & 2 |
|
150MHz |
60MHz |
2.5x |
2 & 3 |
2 & 3 |
1 & 2 |
2 & 3 |
2 & 3 |
|
166MHz |
66MHz |
2.5x |
2 & 3 |
1 & 2 |
2 & 3 |
2 & 3 |
2 & 3 |
|
180MHz |
60MHz |
3x |
2 & 3 |
2 & 3 |
1 & 2 |
1 & 2 |
2 & 3 |
|
200MHz |
66MHz |
3x |
2 & 3 |
1 & 2 |
2 & 3 |
1 & 2 |
2 & 3 |
|
Note: Pins designated should be in the closed position. | |||||||
|
CPU SPEED SELECTION (INTEL MMX) | |||||||
|
CPU speed |
Clock speed |
Multiplier |
JP5A |
JP5B |
JP5C |
JP7A |
JP7B |
|
166MHz |
66MHz |
2.5x |
2 & 3 |
1 & 2 |
2 & 3 |
2 & 3 |
2 & 3 |
|
200MHz |
66MHz |
3x |
2 & 3 |
1 & 2 |
2 & 3 |
1 & 2 |
2 & 3 |
|
233MHz |
66MHz |
3.5x |
2 & 3 |
1 & 2 |
2 & 3 |
1 & 2 |
1 & 2 |
|
Note: Pins designated should be in the closed position. | |||||||
|
CPU TYPE SELECTION | ||
|
Type |
JP8A |
JP8B |
|
AM K6 |
Pins 1 & 2 closed |
Pins 1 & 2 closed |
|
CX 6X86L |
Pins 1 & 2 closed |
Pins 1 & 2 closed |
|
CX 6X86MX |
Pins 1 & 2 closed |
Pins 1 & 2 closed |
|
IBM 6X86L |
Pins 1 & 2 closed |
Pins 1 & 2 closed |
|
IBM 6X86MX |
Pins 1 & 2 closed |
Pins 1 & 2 closed |
|
IDT C6 |
Pins 2 & 3 closed |
Pins 2 & 3 closed |
|
P54C |
Pins 2 & 3 closed |
Pins 2 & 3 closed |
|
P55C |
Pins 1 & 2 closed |
Pins 1 & 2 closed |
|
CPU VOLTAGE SELECTION | |||||
|
Voltage |
JP6A |
JP6B |
JP6C |
JP6D |
JP6E |
|
2.5v |
Open |
Open |
Open |
Open |
Open |
|
2.8v |
Open |
Open |
Open |
Open |
Closed |
|
2.9v |
Open |
Open |
Open |
Closed |
Open |
|
3.2v |
Open |
Open |
Closed |
Open |
Open |
|
3.3v |
Open |
Closed |
Open |
Open |
Open |
|
3.5v |
Closed |
Open |
Open |
Open |
Open |