CODENOLL TECHNOLOGY CORPORATION
CODENET 8331B
|
NIC Type |
Ethernet |
|
Network Transfer Rate |
10Mbps |
|
Data Bus |
8-bit ISA |
|
Topology |
Linear Bus/Star |
|
Wire Type |
Fiber optic cable |
|
Boot ROM |
Not available |
|
CONNECTIONS | |||
|
Function |
Label |
Function |
Label |
|
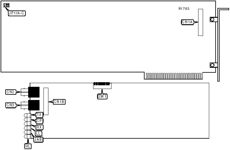
Daughterboard header |
CN1A |
Fiber optic receive connector |
CN2 |
|
Header to main board |
CN1B |
Fiber optic transmit connector |
CN3 |
|
USER CONFIGURABLE SETTINGS | |||
|
Setting |
Label |
Position | |
| » |
Optical transmitter at full power |
SW1/1 |
On |
|
Optical transmitter attenuated by 3dB |
SW1/1 |
Off | |
| » |
Factory configured - do not alter |
SW1/2 |
N/A |
| » |
Factory configured - do not alter |
SW1/3 |
N/A |
| » |
Jabber lockout resets automatically |
SW1/4 |
Off |
|
Jabber lockout resets only by cycling power |
SW1/4 |
On | |
| » |
Factory configured - do not alter |
SW1/5 |
N/A |
| » |
Factory configured - do not alter |
SW1/6 |
N/A |
| » |
Factory configured - do not alter |
SW1/7 |
N/A |
| » |
SQE heartbeat enabled |
SW1/8 |
On |
|
SQE heartbeat disabled |
SW1/8 |
Off | |
|
ADDRESSES/INTERRUPT SELECTION | ||||||
|
Base I/O |
IRQ |
Shared RAM |
Boot ROM |
JP1/A |
JP1/B |
JP1/C |
|
280h |
3 |
D0000h |
D8000h |
Closed |
Open |
Open |
|
280h |
3 |
D0000h |
Disabled |
Open |
Closed |
Open |
|
280h |
5 |
CC000h |
Disabled |
Closed |
Open |
Closed |
|
280h |
7 |
CC000h |
Disabled |
Closed |
Closed |
Closed |
|
280h |
Disabled |
Disabled |
Disabled |
Open |
Closed |
Closed |
|
300h |
5 |
CC000h |
C8000h |
Closed |
Closed |
Open |
|
300h |
5 |
CC000h |
Disabled |
Open |
Open |
Closed |
|
Sofware |
Sofware |
Sofware |
Sofware |
Open |
Open |
Open |
|
DIAGNOSTIC LED(S) | |||
|
LED |
Color |
Status |
Condition |
|
TX |
Green |
On |
Card is transmitting data |
|
TX |
Green |
Off |
Card is not transmitting data |
|
CP |
Yellow |
On |
Network collision detected |
|
CP |
Yellow |
Off |
Network collision not detected |
|
RX |
Green |
On |
Card is receiving data |
|
RX |
Green |
Off |
Card is not receiving data |
|
LL |
Yellow |
On |
Light level below receiver sensitivity |
|
LL |
Yellow |
Off |
Light level normal |
|
JAB |
Yellow |
On |
Network jabber detected |
|
JAB |
Yellow |
Off |
Network jabber not detected |
|
HL |
Yellow |
N/A |
Not used |