KINGSTON TECHNOLOGY CORPORATION
DK100-DE8
|
Device Type |
Internal Tape Drive |
|
Interface |
SCSI |
|
Format |
DAT, DDS |
|
Sustained Transfer Rate |
700 KBPS |
|
Size |
5.25 in. Half-height |
|
View |
Top |

|
USER CONFIGURABLE SETTINGS |
|||
|
Setting |
Label |
Position |
|
|
» |
Factory configured - do not alter |
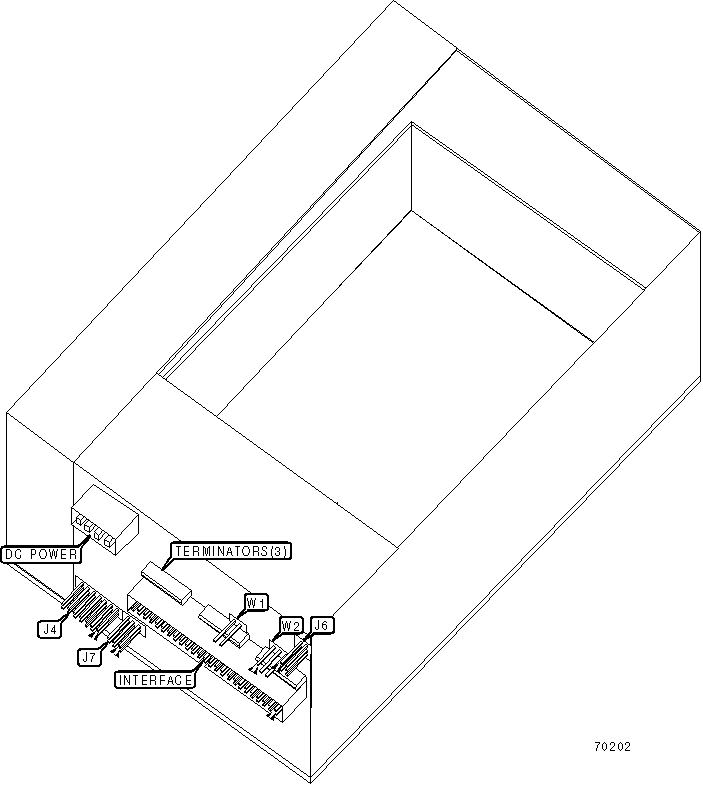
J7 |
Unidentified |
|
» |
Termination enabled |
W2 |
Pins 1 & 2 closed |
|
|
Termination disabled |
W2 |
Pins 2 & 3 closed |
|
» |
Factory configured - do not alter |
J6 |
Unidentified |
|
DRIVE SELECT ID |
|
Note: SCSI ID is selected by either rotating the Unit Select Rotating Switch inside the Receiving Frame, or installing a connector at J4 and setting the ID through a remote location. |
|
TERMINATION POWER SELECTION |
||
|
Setting |
W1 |
|
|
» |
TERMPWR supplied by drive to SCSI interface |
Closed |
|
|
TERMPWR supplied by SCSI interface to drive |
Open |
|
MANUFACTURERS RECOMMENDED MEDIA |
|
|
Tape |
Capacity |
|
90-meter DDS |
8GB |