ACER, INC.
CD-743E, CD-747E
|
Device Type |
CD-ROM |
|
Interface |
ATAPI |
|
Spin Rate |
4x |
|
Formats Supported |
Audio CD, CD-ROM mode 1 & 2, CD-ROM/XA mode 2, form 1 & 2, CD-I, Photo CD, CD-WO |
|
CONNECTIONS | |
|
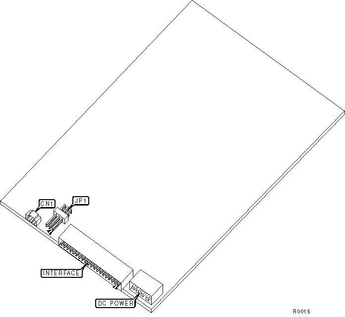
Function |
Label |
|
Audio line out |
CN1 |
|
ATAPI MASTER/SLAVE | ||||
|
Setting |
JP1/1 |
JP1/2 |
JP1/3 | |
|
Single drive only |
Closed |
Open |
Open | |
|
Master in two drive system |
Closed |
Open |
Open | |
| » |
Slave in two drive system |
Open |
Closed |
Open |
|
Master/Slave determined by Cable Select |
Open |
Open |
Closed | |
|
Note: ‘Single drive’ refers to the sole drive connected to an IDE interface (there may be up to two on a given system). Master & Slave refer to two drives connected to an interface. | ||||